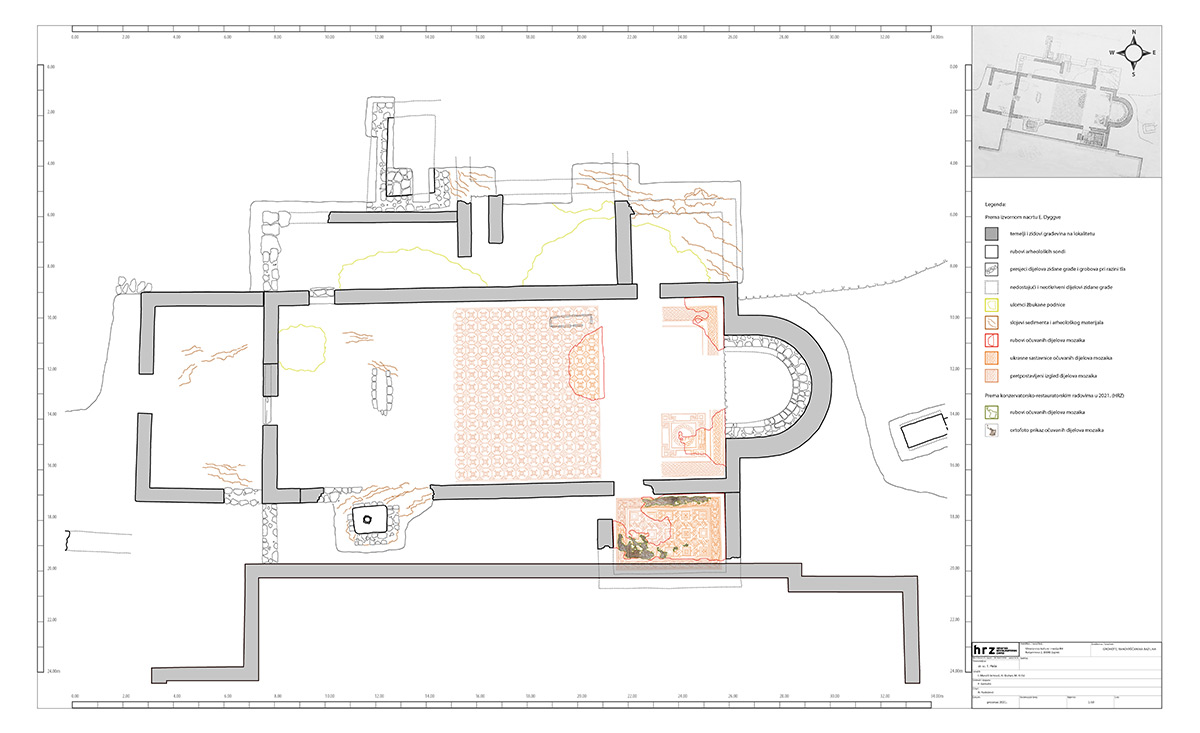
Ostaci antičkih mozaika iz jednobrodne starokršćanske bazilike sv. Stjepana u naselju Grohote
Na ostatcima antičkih mozaika iz jednobrodne starokršćanske bazilike sv. Stjepana, smještene na sjevernom rubu šoltanskoga naselja Grohote, Hrvatski restauratorski zavod od 2021. do 2023. godine proveo je istraživačke i cjelovite konzervatorsko-restauratorske radove

Na ostatcima antičkih mozaika iz jednobrodne starokršćanske bazilike sv. Stjepana, smještene na sjevernom rubu šoltanskoga naselja Grohote, Hrvatski restauratorski zavod od 2021. do 2023. godine proveo je istraživačke i cjelovite konzervatorsko-restauratorske radove (voditelj: Ivana Jerković, Odsjek za zidno slikarstvo, mozaike i štuko, Služba za odjele izvan Zagreba 3). Tijekom prvih arheoloških istraživanja (1927. – 1931.) don Marin Bezić, don Frane Bulić te poslije i dr. Ljubo Karaman, a zatim i uz pomoć danskoga arhitekta Ejnara Dyggvea (1931.), među ostalim nalazima pronalaze i dokumentiraju antičke podne mozaike u glavnom brodu bazilike i prostoriji južno od apside. U glavnom brodu pronađen je mozaik geometrijske dekoracije sastavljen od mreže osmerokuta s upisanim kvadratima koji međusobno zatvaraju dijagonalno osovljene kvadrate te mozaik ispred apside glavnog broda (sjeveroistočni i jugoistočni kut). Ostatci nekoć jedinstvenoga mozaičnog tapeta votivnog karaktera iz sjeveroistočnog i jugoistočnog kuta glavnog broda bio je ukrašen rubnom dekorativnom trakom izvedenom trostrukim i četverostrukim prepletima pletenice. U njegovu jugoistočnom kutu pronađen je natpis u krugu sastavljen od jednostruke pletenice i uokviren širokom dekorativnom trakom s prikazom meandara od svastike i kvadrata. Za razliku od glavnog broda, u prostoriji južno od apside u cijelosti je pronađen pravokutni geometrijski mozaični tapet. Rubna dekorativna traka izvedena je isprekidanim prepletenim nizom, dok je unutrašnjost komponirana od 15 većih kvadrata s upisanim različitim stiliziranim motivima: križ, kvadrat, solomonov čvor, šahovnica i sl. Oko kvadratnih polja proteže se sinusoidna traka ispunjena glatkim linijama koja međusobno zatvara veće i manje krugove te rombove. Otkriveni mozaici su različitih geometrijskih shema, zasebni i slijede orijentaciju crkve, a izvedeni su kockicama veličine od oko 1 cm različitih tonova (bijela, siva, crna, plava, žuta, crvena).
Ponovnim arheološkim istraživanjima provedenima od 1978. do 1979. godine i revizijskim istraživanjima mozaika 2021. godine, utvrđen je njihov nepovratni gubitak. Mozaici iz glavnog broda sasvim su izgubljeni; sačuvale su se samo rasute tesere, dok su se u prostoriji južno uz apsidu in situ sačuvala dva ulomka mozaika.
Fotoalbum
Nepredvidivi djelomični ili potpuni gubitak ostataka mozaika in situ zahtijevao je ekspeditivnost pri njegovu stabiliziranju/konsolidiranju s ciljem očuvanja materijalnog i duhovnog integriteta. Stabiliziranje/konsolidiranje je podrazumijevalo: konsolidiranje lica mozaika i dizanje mozaika s izvornog mjesta prema planu rezova, konsolidiranje poleđine ulomaka u radionici, čišćenje i pripremanje prostorije za prihvat mozaika, postavljanje nove žbukane podloge u obuhvatnoj zoni, pozicioniranje mozaika in situ, čišćenje lica mozaika od zaštitnog sloja, postavljanje završne žbuke između ulomaka mozaika i konsolidiranje lica mozaika. Konsolidiranje lica mozaika izvedeno je različitim metodama i tehnikama (injektiranje, konsolidiranje mehaničkih oštećenja i sljubnica/fuga te impregniranje lica mozaika). Nakon vraćanja stabiliziranih izvornih mozaika in situ, uslijedila je sljedeća radna faza u radionici – izrada replike/rekonstrukcije dijela mozaika i njegovo postavljanje in situ. Za izradu novih ulomaka izrađen je detaljni grafički crtež/predložak sa shemom likovne geometrijske dekoracije mozaika u odnosu na izvorni mozaik. Predložak je izrađen u mjerilu 1 : 1 i sastavljen je plan/nacrt izrade s budućim ulomcima rekonstrukcije. Rekonstrukcija je izrađena u pet različitih dijelova/ulomaka određene veličine radi lakše manipulacije pri izradi, postavljanja in situ i lakšeg transporta iz radionice do nalazišta. Nakon izrade crteža, ručno su izrađene kockice od prirodnog kamena lokalnog porijekla, koje su poslužile za izradu novih ulomaka tzv. indirektnom metodom. Prije postavljanja replika in situ, ulomci su probno postavljeni u obuhvatno područje; pritom se pazilo da slijede likovnu dekoraciju i visinsku razliku između izvornih mozaika. Nakon utvrđivanja svih navedenih činjenica, postavljen je žbukani prihvatni sloj između podloge i ulomaka. Kad je postignuta kompatibilnost ulomaka i podloge, uslijedilo je mehaničko-kemijsko čišćenje površine te izrada retuša s izvornim kockicama na mjestima većih mehaničkih oštećenja, kao i na spoju izvornih i novih ulomaka mozaika. Novonastala mozaična površina fugirana je adekvatnom vapnenom žbukom, dodatno je očišćena kemijski neutralnim sredstvima i naposljetku impregnirana. (IJ)